- +7 (499) 391-37-05
- СМК Новый Стиль, РОССИЯ, М О, г. Мытищи ул. Колонцова, дом 5, п. 2, пом. 319
- novyy.stil.21@bk.ru
- ИНН: 5029260794
Комфорт 1Д2
Описание:
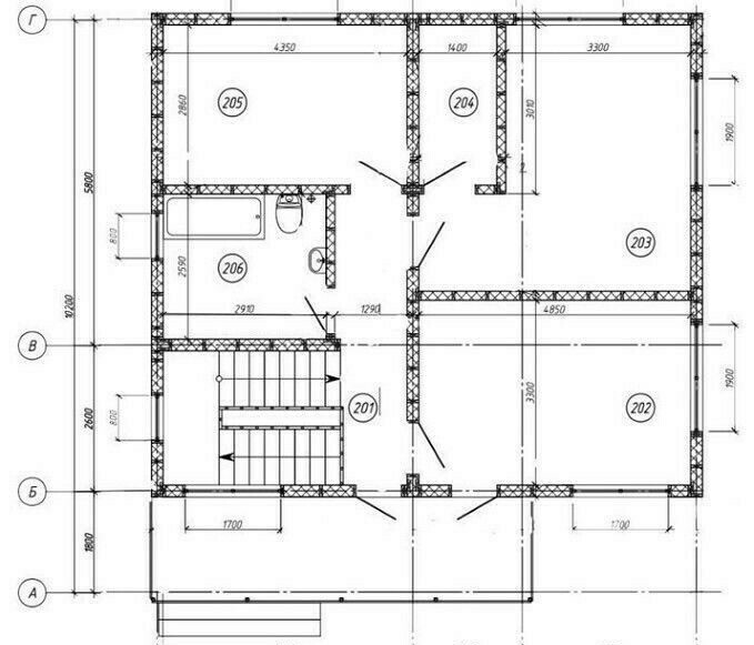
Проект жилого двухэтажного дома, для постоянного круглогодичного проживания.
Любой проект, представленный на сайте, можно изменить под ваши пожелания. Например, можно изменить планировку помещений, заказать постройку в зеркальном отображении от плана на сайте, заказать пристройки в виде крыльца, террасы, увеличить или уменьшить количество окон и дверей, заменить кровельное покрытие, увеличить толщину утеплителя и многое другое. Также Вы можете заказать изменение площади постройки, этажность и тип крыши.
Наши специалисты дадут Вам профессиональные советы, проконсультируют по технологии строительства и видам применяемых материалов, учтут ваши пожелания при составлении сметы. Услуги по согласованию изменения планировки и т.п. - бесплатны.
Уважаемые Посетители нашего сайта! Вам не обязательно использовать проект с нашего сайта, нам вполне подойдёт и нарисованный Вами от руки или взятый из других источников проект.
Звоните и наши менеджеры ответят на все Ваши вопросы!
Общая площадь застройки: 162 кв.м.
Общая площадь дома: 154 кв.м.





Стоимость дома по каркасной технологии
Базовая комплектация
Стоимость строительства дома с учетом строительных материалов:
4 810 300 руб
Комплектация под ключ
Каркасный дом с чистовой отделкой
Комплектация наших проектов соответствует премиум классу
Стоимость строительства дома с учетом строительных материалов:
8 280 800 руб
Стоимость керамзитоблочного дома
Базовая комплектация
Стоимость строительства дома с учетом строительных материалов:
5 88 руб
Комплектация под ключ
Керамзитоблочный дом с чистовой отделкой
Комплектация наших проектов соответствует премиум классу
Стоимость строительства дома с учетом строительных материалов:
9 400 000 руб
Корзина пуста
0
шт.
/
0 руб.
Оформить
Очистить